音随心动,光影交织。|【广州汇景新城】私人定制智能影音室案例分享
项目基本信息:
项目位置:广州汇景新城
实施方类别:广东赛宾科技有限公司
案例类别:私人定制智能控制影音室
投入资金:75万
空间信息:长7.03m*宽4.94m 面积34.8㎡
业主基本信息
业主35岁左右,成功人士。作为重度影音爱好者,每晚都会花两三个小时观影,对影音室的个要求就是专业。在华南区对比了多家专业影音公司后,最终选择了赛宾团队负责整个影音室的设计安装;在产品选择方面,业主表示对JBL大师系列情有独钟。
01 设计团队:广东赛宾科技有限公司
广东赛宾科技有限公司,简称赛宾。
作为国内影音智能行业专业的公司,拥有17年之久专业打造智能影院的团队。赛宾是由一支拥有着高度设计热情的影音派系年轻人组成,将心血注入到每一个设计案例当中。注重“以人为本”,无论是私人影院、智能家居、大型商务娱乐会所,都以追求艺术性和功能性的契合为目的,把实用性展现给使用者。
工程监理——陈立宁
Control4认证工程师、HAA工程师、CEDIA认证工程师、IMAX认证工程师,精通私家影音、智能家居、弱电、强电及安防监控的定制和安装;熟悉智能家居、音响等相关设备的调试和维护;具有较强的沟通协调能力,善于与客户和团队进行沟通协作;责任心强,踏实敬业,具有较强的团队合作精神。从事智能家居行业已有五年的时间,在此期间累计完成了100+的私人影院、智能家居、背景音乐无纸化办公的整体解决方案,具备扎实的技术基础和丰富的项目实践经验。
工程监理——蒋焕
专业音响系统工程师、调音师,CEDIA 和 HAA认证工程师, 曾担任多个大型演出活动,固定安装的技术支持及音响系统调试,熟悉运用EASE 等多款声学模拟仿真软件,百场中小型私家影院实操案例丰富经验。
02 配置方案:广东赛宾科技有限公司
美国JBL大师监听系列 9.2.4杜比全景声方案
美国JBL大师监听系列 主音箱:2只 (708i)
美国JBL大师监听系列 中置音箱:1只 (708i)
美国JBL大师监听系列 环绕音箱:6只 (705i)
美国JBL大师监听系列 天花音箱:4只 (705i)
美国JBL低音音箱:2只 (4645C THX)
英国雅骏 AV功放:1台 (AV21)
Saibin定制 后级功放:5台
4K蓝光播放机:1台 (IPUK UHD8592Pro)
施威180寸4K投影幕:1套
明基BENQ 4K激光投影:一台 (HT6550L)
美国Control4影院智能控制系统:1套

产品介绍——美国JBL大师系列
早在1936年,由JBL创始人James B.Lansing研发的Shearer-Lansing号角系统以“奠定行业标准”,获得美国电影艺术与科学学院的表彰,荣获第8届奥斯卡“科学技术奖”。时光流逝,物是人非,唯有JBL这一传奇品牌历久弥新,时至今日仍然稳坐十大知名音响品牌的宝座。之后,JBL的品牌定位逐渐形成民用和专业两大发展方向。而大师系列则是隶属JBL Pro专业系列旗下,源自监听领域,其声音自带精准还原的属性。
产品介绍——BENQ明基投影机

这是一款可以满足所有不同领域用户的机型,紧握色准与动态HDR处理两项优势,配备成熟的单色蓝光激光光源,具备2800ANSI流明的光输出亮度、DCI-P3级别广色域的色彩还原以及专业监视器级别的色准,并且是先加入动态帧对比度算法与千域控光技术,全面支持HDR10、HLG、HDR10+三大主流HDR技术格式。同时在机身性能方面,不管是高解析全玻璃电动光学镜头,完善的色彩管理系统、3D显示、MEMC动态补偿等,都能充分体现出HT6550L旗舰的风范。
03 构建过程:广东赛宾科技有限公司

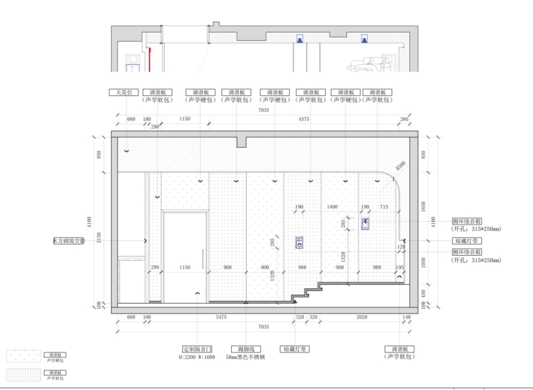
构建影音室之前,需要先了解这个空间的大概信息:本案利用地下负一层一个独立空间打造,这一空间长7.03米,宽4.94米,高4.1米,总体面积34.7㎡。长方形的原始毛坯结构,空间较为封闭,没有窗口,很好地具备了打造影音室的先天条件,较大程度地减少了外界噪音干扰。不算太大的空间,投入资金却有75万之多,称得上是重金打造,足以体现业主对于自家影音室的重视程度。

为了构建此影音室,赛宾团队针对业主的要求做了详细的规划,主打一个想业主未想,做专业所需。业主要求的做到他满意,业主没要求的我们也要未雨绸缪,努力周到完善每一处细节。

在了解到业主喜欢简单低调的风格之后,赛宾设计团队参考了业主给出的效果图,从专业的角度出发,为业主重新设计定制了一套效果图。考虑到业主对于影音室音效的重视程度,设计师采用了能够更加原汁原味呈现声音效果的材料,在实际测量现场尺寸,以及细致全面的施工图,真实1:1高还原度的三维视觉呈现给业主,使其一目了然,用轻易理解的方式去诠释风格效果。
04 案例展示:广东赛宾科技有限公司


在整个方案落地实施的过程中,赛宾团队针对以下几个问题采取了针对性的方案。
一、考虑到常规影音设备会破坏造型完成度,投影幕特意采用了透声画框幕布,同时将音箱都隐藏起来,使整个影音室前墙造型美观,干净简洁,使人只闻其声,不见其形!
二、为了更好的观影效果,摒弃了U形或L形家具沙发,全部选用影院专业的座椅沙发,并在后排做阶梯,抬高后排视野,以形成前后两排的的座位,不被遮挡,并更大程度地为人员观影提供更多座位。

三、音效处理:音效是影音室的核心,使用吸音板、声学隔离墙等材料来消除回声,并确保音响声音在整个房间内均匀分布,提供沉浸式的音频体验。
整体家装施工有一年多时间,我们的安装也分为两个阶段,前期把嵌入式音箱等设备提前安装,摆放到机柜的设备后期安装,协同智能系统调试一并进行。

四、业主希望尽量让空间简约化,但太素的墙面会显得过于单调,我们保留了原始素雅要求,在此基础上,在墙壁左右两侧做简易的灯带造型。以左右对称的设计,形成规律的、有序的灯光设计,一方面起到了照明作用,另一方面让影音室质感提升,简约中带有设计感。
五、控制系统:安装智能控制系统,集成音响、投影设备、声音和照明等功能,方便通过单一遥控器或手机应用程序来控制房间内的各项功能,使操作更加简易方便。
设计心得
一套好的影音器材,没有一个好的听音环境做配合,也是无法发挥其效果的。影音室的空间建造,要从全方位的角度出发,其中涉及到器材搭配、影音室的装修风格是否协调、智能中央控制系统的搭建、室内声学和灯光的设计、以及家装的实用性等方面。如何系统性地运用这些专业知识,为客户定制设计一套属于自己的私人影院,这也是我们赛宾团队被客户选择和肯定的原因。内声学和灯光的设计、以及家装的实用性等方面。如何系统性地运用这些专业知识,为客户定制设计一套属于自己的私人影院,这也是我们赛宾团队被客户选择和肯定的原因。