化繁为简的影音室格局,在极简的基底上巧妙地做加法,一点一滴累积出家庭影院的印象,却依然让影音室整体看起来宁静有序,打造常住常新之感。
今天要介绍的案例“天安鸿基花园”地处大广佛核心圈层,背靠广东旅游胜地南国桃园,“天安鸿基花园”作为南国桃园下少有的依山傍水的纯别墅社区,为尊贵的业主打造真山真水真生活的建筑理念。7000平米的桃园森林郁郁葱葱,鲜氧翻滚,给业主提供纯自然后花园。60000平米的天然水域波光粼粼 ,山水交融,澳式风情别墅与山水浑然天成。

置身别墅庭院之中,举目所见皆是一片郁郁葱葱,庭院一角的假山造景,流水正在叮咚作响,整体营造出”步步有景,处处见水“的双景观生活境界。在这里你可以“内赏园林、外眺繁华",深刻体会业主对于雅致生活的品质追求。
业主李小姐,一位将生活过成诗的雅致女性,她爱踏遍山川湖海,也爱深耕人间烟火。这份对“雅致生活、自然本真” 的追求,也深深烙印在她的别墅装修与影音室设计中。别墅整体以 "简约轻奢"为基调,没有繁杂的装饰,却在材质的肌理与线条的利落中透着低调的质感 ——正如李小姐的生活态度,于简约中见精致,于轻奢中藏本真。
李小姐热情好客,朋友甚多,想通过赛宾的设计团队,建造一间在家就能享受电影的私人空间。对于影音室的设计核心诉求,李小姐希望实现“视觉美感”与“声学效果”的无缝共生——既要有足以匹配别墅简约轻奢格调的颜值,成为空间美学的延伸;又要具备专业级影音表现,让每一次观影、听乐都成为沉浸式享受。这份“好看又好用”的要求,并非简单的风格堆砌与设备叠加,而是从空间气质、细节肌理到声画体验的全方位精准契合。
英国猛牌 7.1.2杜比全景声影院系统
英国猛牌Monitor Audio 主音箱*2只
英国猛牌Monitor Audio 中置音箱*1只
英国猛牌Monitor Audio 环绕音箱*4只
英国猛牌Monitor Audio 全景声天花音箱*2只
英国乐富豪Wharfedale 低音音箱*1台
安桥Onkyo AV功放*1台
视易 3D硬盘流媒体蓝光播放器*1台
美国施威150寸 4K透声幕*1张
优派ViewSonic 4k激光投影机*1台
美国Control 4 智能中控系统*1套
户外背景音乐系统*1套
设计团队
team
设计公司:广东赛宾科技有限公司
又称赛宾智能影音,国内杜比授权认证私人影厅,美国CEDIA 协会会员。
专业从事智能家居与家庭影院、声学设计与施工,私人影院电声设计等一站式服务。23年内成功实施了超过5000+落地案例,企业拥有扎实稳定的服务团队,严谨缜密的一站式服务流程,是佛山地区历史悠久、实力雄厚、服务完善的智能影音定制安装企业,一直致力为客户量身定制个性化高品质私人影院,为客户打造私人影音乐生活,缔造美于美国好莱坞标准的私人影院!让世界专业的家庭影音系统及全宅智能中控设备进入私家生活,尽显尊崇私人品味。
设计师:吴锦贤
热爱影音器材及电影,从事家庭影院定制安装 20多年,擅长家庭影院、全宅智能、空间声学设计,拥有扎实的影音产品专业知识,深受众多客户和同行设计师信任,打造众多家庭影院项目,案例荣获多个国内外私人影院设计大赛大奖。
工程监理:伦家建
个人所专所长智能家居、弱电、强电及安防监控;擅长私人影院、智能家居的整体解决方案,从业四年以来,以严谨负责的工作态度,打造了很多专业案例,为用户提供高效率的口碑影院效果,以及高褒奖的满意度,深得业主好评。
构建过程
process
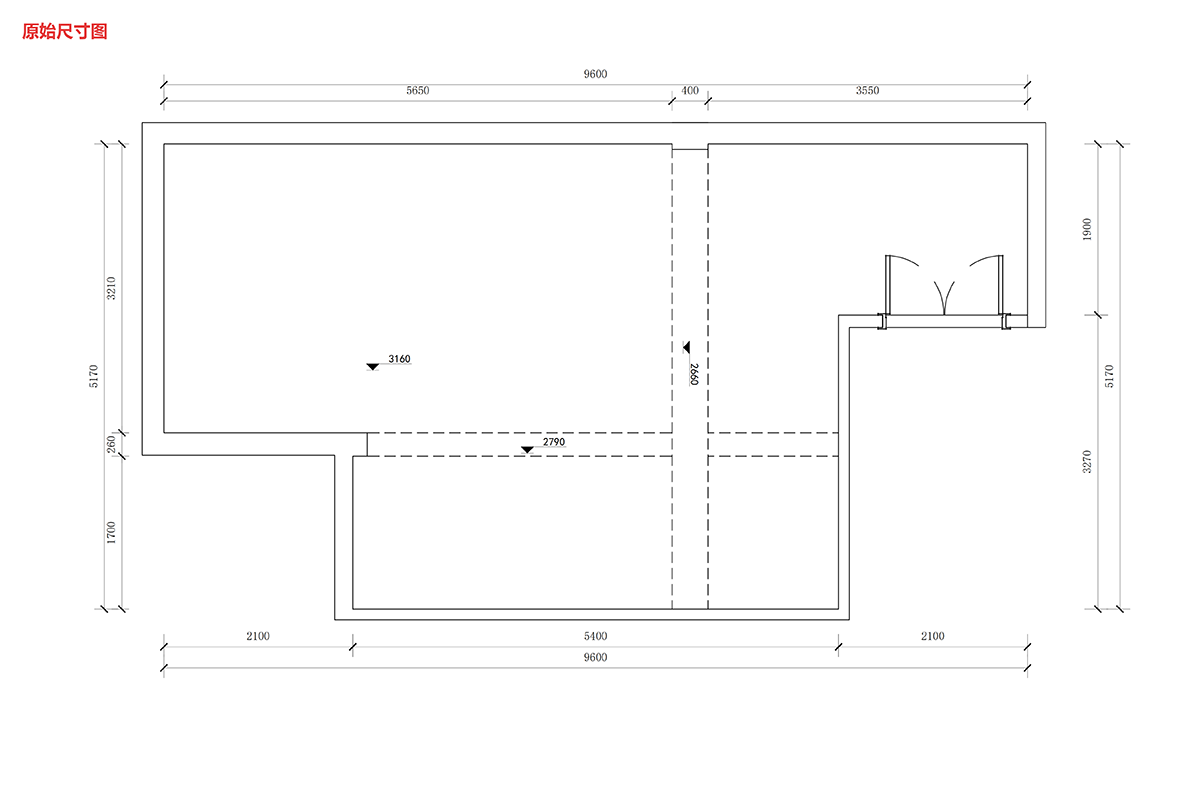
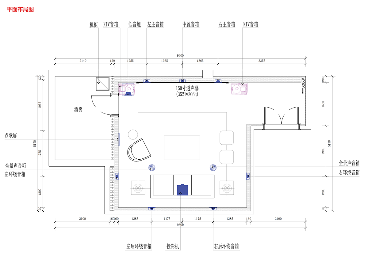
先来介绍下本案的空间信息,该影音室是利用负一楼的独立空间打造而成,这一独立分区长9.6米,宽5.17米,整体呈长方形的不规则结构。虽然地下室具备先天的隔音条件,但是不规则的空间结构也给布局划分以及声学处理带来了不小的难题。为此,赛宾团队做出了以下措施——①将整体不规则空间划分成几个规则布局。既能对空间做规整化处理,又能提升该空间的功能性和实用性;②加入格栅、声学饰面、地毯软装等设计,对后期隔音吸音处理提供有力帮助。


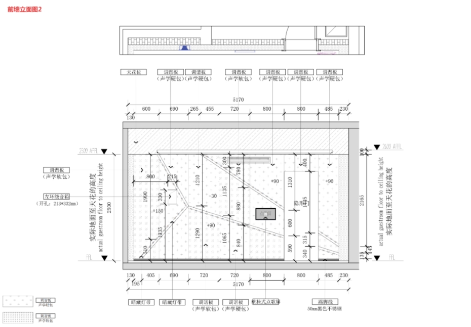
针对业主的个要求——要有足以匹配别墅简约轻奢格调的颜值,设计师给出了令业主满意的答案。整间影音室以深邃的黑咖色为主调,营造出沉稳而奢雅的观影氛围。顶部点缀星空灯,如同夜幕轻落,散发柔和的光影美感;墙面以流动的线性灯带切割空间,勾勒出未来感十足的几何轮廓。巨幅投影银幕与两侧隐藏式音响无缝融合,让视听沉浸感倍增;前墙的格栅设计,既能起到一定的造型作用,又能优化低频和声场均匀性。宽大柔软的沙发搭配低调的现代茶几,为观影与放松提供体验。整体设计在光影、材质与比例之间取得完美平衡,既有影院级震撼,也具私享空间的温暖与格调。
效果图展示

为了达到效果图上表面极简的美学设计,在设备安装之前,需要先在影音室前方定制设备间,使器材摆放在设备间的框架上。这样一方面是为了保证器材不接触地面,同时封闭的空间也可以杜绝灰尘弄脏器材;另一方面,150寸的4K透声幕一装上,器材可以完全隐藏,达到简化空间的效果。而且透声幕可以准确地将器材的声音传达到观众席,可谓是一举两得。
除了前墙内藏玄机以外,两边侧墙的造型设计也是暗藏巧思。几何折线通过高低错落的分割,让墙面从"平面"变为"立体层次",搭配暖色调线性灯带,在光影的明暗变化中,勾勒出空间的动态张力,打破传统影音室 “平整墙面” 的沉闷感,更契合现代轻奢的装修风格。


这一造型设计不仅提高了空间的美学设计,在声学功能上也提供了不小的作用。传统平整墙面易让声波沿单一方向反射,形成驻波或声聚焦;而折线造型的墙面,能将声波向多个方向散射,让声场更均匀,避免某一区域声音过强 / 过弱的问题,尤其适配影音室的多人观影场景,保证不同座位的听觉体验一致。当灯光开启时,折线灯带如 “流动的光轨”,在观影模式下(微光环境)营造出沉浸式的 “氛围结界”。



前墙的格栅设计,其通透的结构为前置猛牌主音箱提供了无阻碍的发声通道,确保中高频声波穿透顺畅,避免因箱体遮挡导致的声音衰减或失真;同时,格栅与幕布后方的声学空腔、吸音棉形成配合,可辅助吸收部分低频驻波,进一步优化声场均匀性。再辅助上声学饰面聚焦中高频吸收、地毯弱化地面低频反射,共同构建了均匀、纯净的专业声场;



器材介绍
products
在如今的家庭影院中,比起传统的落地式影院方案,越来越多的人更青睐于嵌入式影院,它既解决了"设备与家装风格冲突" 的审美痛点,又满足了"多场景适配"的生活需求。本案使用的音响品牌——英国猛牌Monitor Audio,外观方正典雅,其高灵敏度、低失真、宽泛的动态和平直的频响,都和高保真音乐吻合,声音清澈,频带宽阔、承载力强,整体声音剔透玲珑,音质美轮美奂。
猛牌定制安装系列方案,W180作为主音箱同时作为中置箱使用,隐藏在150寸透声幕的后面,让声音更加通透逼真,打造观众前方声场效果。环绕音响W165置于影院左右方,让声音真切围绕着观众席上的业主。本系列为密封式,带一定防水、防潮及防尘功能。其磁石式面网设计,使用上非常方便。业主的这间影院真正做到音箱与空间的融合,极大程度地美观了现场,免去布线影响整体美观的困扰,使得整体布局简洁大方美观得体。
天花上的顶部音箱,根据聆听的角度来安排,确保观影者在室内也能感受到全景声效果。猛牌C系列,其振动膜分金属聚合物与陶瓷面铝镁金属两类,取得很好相位及线性宽频特征,同时适合音乐及电影使用,一举两得。
为了增强低音效果,充分考虑房间尺寸和音响系统的配合,低音炮的品牌选择英国乐富豪。英国乐富豪拥有长达92年的品牌历史,不光遗留下岁月积淀的痕迹,同样也传承了英国老派贵族阶层对音乐文化的定性和认知,属于真正的英国声。
影院的NR7100 AV功放,属于Onkyo所带来的一款拥有9.2声道环绕声处理与放大能力的合并式家庭影院放大器。在视频技术方面,TX-NR7100配备7进2出HDMI接口,全部都支持8K/60Hz与4K/120Hz超高清视频传输,能够显著提升游戏的畅玩体验。在环绕声技术方面,TX-NR7100相比同级别的家庭影院放大器的优势在于拥有THX Select认证以及全频段Dirac Live房间声学校正系统,在关键的低频部分,能够有效地减少房间低频驻波问题所造成的影响。在环绕声音效处理方面,TX-NR7100完整支持Dolby Atmos、DTS:X沉浸式三维音效,同时也获得了IMAX Enhanced认证,可以轻松组建7.2.2环绕声音箱系统。
显示方面,我们为这间影音室配置美国优派的4K激光投影机,配上150寸透声幕,在带来超高清画质的同时,色彩表现更加鲜艳靓丽,可运用于独立室环境享受家庭影院乐趣,尽情享受精彩影集、极速游戏等大画面的无限乐趣,画面色彩更真实更生动。
设计心得
Experience
于业主李小姐而言,这座别墅、这间影音室,早已不是单纯的居所与娱乐空间,而是她热爱生活的"容器”—— 这里有旅途中的光影记忆,有美食里的烟火温情,有煮茗品茶的雅致心境,更有影音技术与自然生活的完美共鸣,每一处设计都藏着她对生活的理解:生活的美好,恰在于将热爱的一切,都安放在触手可及的地方。
