家庭影院定制
您当前的位置 : 首页 > 企业动态 > 企业新闻

都市归巢 奢享影音【佛山.保利紫山】顶层阁楼影音室案例分享

2022-10-22 10:18:34
2468次

图片

家庭影院的定制与安装 -

图片

影院案例分享



私人定制影音设计,是沁人心脾的心灵慰藉,让我们在茫茫浩瀚生命长河里,找到生活的闪光点,得到璀璨、愉快的家居体验。

图片

01

业主述求

业主的家,位于佛山.保利紫山:一栋巍峨庄严的欧式别墅。业主想将别墅的顶层阁楼,设计成家庭影音室,这一影音室,要求既能看电影又能唱歌,装修需要简约一点的,家里的孩子比较多,影音室呈现的最后效果,更好是俏皮活泼的,最后是要求在看电影的时候不要影响楼下孩子的学习。

图片

01

设计公司:佛山赛宾科技有限公司

设计师:黄永相

图片

从业影音智能十余年,项目设计工程师,擅长家庭影院、全宅智能、空间声学设计、会议多媒体全案集成系统,个人全国案例经手数百间。

个人案例作品:

2017-2018连续两年荣获全国设计大奖:《北京.优山美地》项目获得2017-2018年商业展示解决方案大奖;2017-2018《佛山.里水棠溪》项目获得全国年综合 类家居娱乐解决方案大奖;

2018-2019  年度中国影音设计师二十强;

2021-2022《全庭影音解决方案案例大奖》;2021-2022《全国智能工程设计奖》;《2021年高端影音定制空间设计大赛》获得专业影音定制设计奖、所设计案例持续被刊登国内权威《影音中国》等知名杂志转载。

个人众多案例连续多年国内权威影音媒体《影音中国》、《家庭影院》、《影音影音》《智能头条》等杂志收录转载。

工程监理:伦家健

图片

个人所专所长智能家居、弱电、强电及安防监控;擅长私人影院、私人高尔夫的整体解决方案,从业四年以来,以严谨负责的工作态度,打造了很多专业案例,为用户提供高效率的口碑影院效果,以及超高满意度,深得业主好评。

01

顶层阁楼室空间信息

阁楼室在别墅的顶层,不规则的设计,天花呈三角形,空间长7.3米,宽6.5米,层高2.995米,梁高2.46米,楼下是起居室,隔壁是户外露天花园。

图片

项目佛山保利紫山,是位于4A风景区展旗山风景区脚下的规划别墅,也是广佛核心百万方规模的人居住处。自带9000㎡狮子湖以及天然温泉,是城市山景、湖景的高端别墅住宅。

图片

构建


过程

The First Day

在业主的眼中,顶层阁楼的缺陷很多,比如空间不规则、空间矮小等诸多因素,导致业主对建造阁楼影院没有太多信心,但这些所谓的“缺陷”,在设计师眼里,则是恰如其分魅力所在,因为专业的设计师明白,一旦合理应用这些“缺陷”,其阁楼的利用率和空间的变化丰厚无比。

图片

建造阁楼影院,设计师的设计、施工原则是:不损坏阁楼的原有结构,透风、采光、防水、隔热,隔音、装修等,这些设计一个都不能忽视。但为了让影院的宽敞比例控制在1:2以内,也不易做过多的声学处理,减少驻波的可能。

图片

阁楼在不改动原有结构的基础上,又要承重以及受力,使用钢结构。

要减少噪音,以此来减弱对楼下家人休息、学习的打扰,在钢结构上加一层钢板,铁丝挂网后铺水泥沙,上面再铺地砖。这样设计的地面,隔音效果较好,也硬朗很多。

透风换气是坡顶阁楼最关注的问题,由于没有门,窗也小,空气对流不顺畅,故安装新风系统。

图片

家居顶层的坡顶阁楼,其建筑结构独特悬殊于一般居室空间的建筑结构,这类阁楼空间结构丰厚,但空间又显患上矮小局促,所以,在设计上,我们依据业主预先设定的功用,充沛应用阁楼的层高、形状,并张扬原有空间结构的特色以及优势,在这过程中协调好总体居室的风格,我们将星空顶设计在阁楼天花上,半弧型设计,增添整体空间的包围感和温馨度,视觉上起到延伸感,减少层高受限带来的局促感,合理利用好阁楼的顶层,趣味性很足。

图片

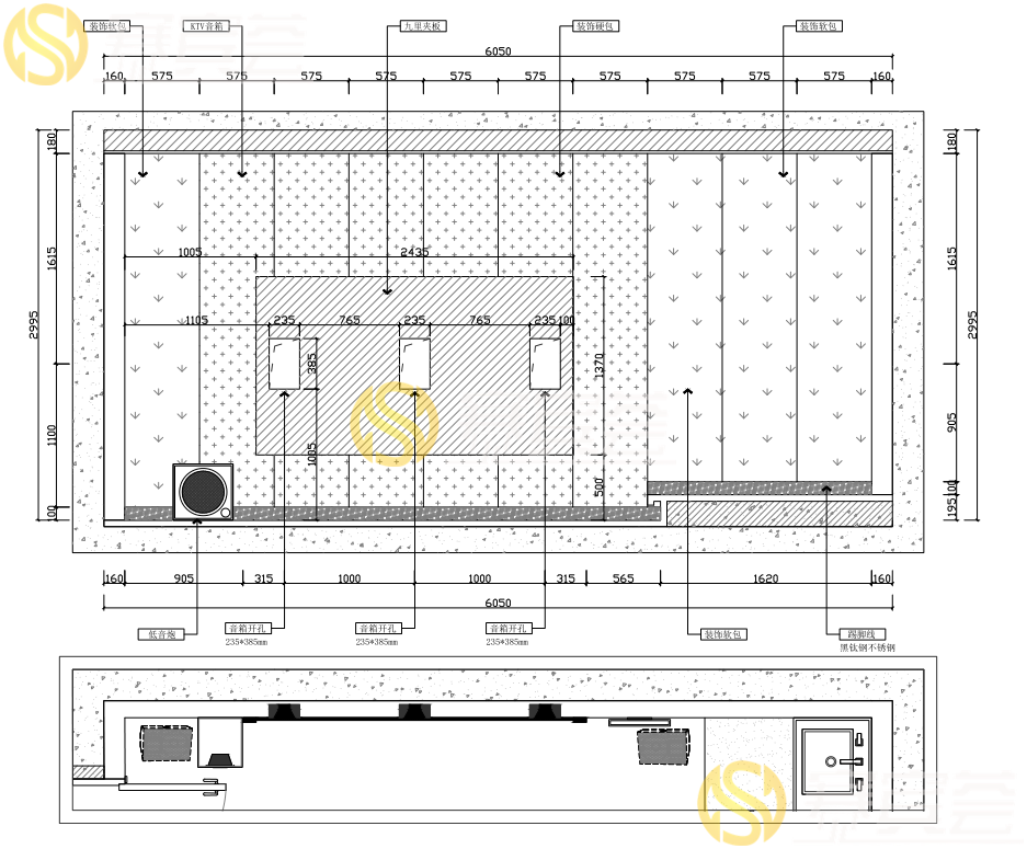
整体规划,影院音响可以完美的嵌入墙体之中,卡拉OK音响壁挂于墙,减少音响线路的损耗,在空间范围内,屏幕尽量做到更大化选择110寸画框幕,整体空间更加简洁,也能享受大屏带来的视觉冲击。

图片

器材的选配,整体影院按照7.1全景声来设计,音响系统采用的是英国猛牌的THX认证定制安装系列,是英国猛牌产品系里面全球销量及用户选择都较多的一款,再配合丹麦DALI 14寸超低音,可谓强强联手,英伦系爆发力体现的淋漓尽致。

图片

视频方面采用优派4K家用投影机+美国施威110寸画框幕,即使在别墅顶层阁楼,拥有充足光线的情况下,也能很好的还原色彩,让画面表现相当精彩。

图片

美学和光学方面,由于兼容卡拉OK和家庭影院两套系统,避免做太复杂的美学处理,墙面采用的是错层造型配合一公分厚的软包设计,满足影音室吸音的同时,天然的错层设计,对声场的扩散也有较大帮助,搭配LED条形灯,使得整个影院空间更有层次氛围。

图片

视听室限于不规则顶层的设计,在梁高受限的地方,巧妙利用空间设计成吧台,侧方设计成排柜储存物品和摆放机柜,让每一处都被合理使用,观众席设计四个座位,观影视线不会因梁高不够而遮挡,再外加几个脚凳,多人同时娱乐也不在话下。

图片

此外视听室作为一个休闲的空间,内外景相互衬托,选择是将能看得见窗外美景的空间作为视听室,这种锦上添花的做法能够为身处其中的人带来更加愉悦的视听享受。

图片

方案


详细

英国猛牌7.1杜比全景声影院系统

Monitor Audio 定制安装主音箱*2只

Monitor Audio 定制安装中置音箱*1只

Monitor Audio 壁挂式环绕音箱*1对

Monitor Audio 定制安装全景声天花音箱*2只

DALI 14寸低音炮*1台

DENON AV功放*1台

优视加 U6 3D4K越狱版播放器*1台

图片

英国乐富豪2.1KTV系统

视易 6T30万首点歌机*1套

视易22寸触摸屏*1台

Wharfedale pro KTV主音箱*2只

Vinal 旗舰版前级效果器*1台

MASU KTV功放*1台

BBS 无线麦克风*1套

图片

影音室显示系统

优派4K 投影机*1套

Swein 110寸画框幕*1张

图片

▲分割线


图片

设计心得

在别墅建筑群中,很多人都把关注点投放在地下室,而别墅的阁楼鲜有注重,尤其是斜顶、不规则形的阁楼,更是沦为堆放杂物的地方,其实这是一种挥霍。阁楼影院在近几年来无比的流行,特别是小型阁楼的装修很受一些年青人的喜好,阁楼视听室掀开阁楼废物利用的遮羞布,可谓物尽其用。

图片

赛宾荟

图片

智能影音

图片

佛山禅城居然之家A座7006室&7020室

联系人:张小姐

联系电话:400-822-3686


标签